Обмер фасада частного дома
Задача:Выполнить обмер фасада частного дома.
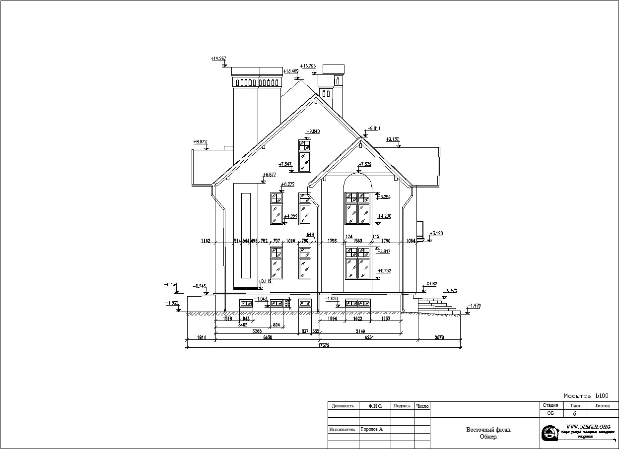
Описание: Обмер фасада проводился для дальнейших проектно-строительных работ по утеплению коттеджа.
Срок: 4 дня.
Задача:Выполнить обмер фасада частного дома.
Описание: Обмер фасада проводился для дальнейших проектно-строительных работ по утеплению коттеджа.
Срок: 4 дня.